HAUS DER MUSIK: ARCHITEKTURWETTBEWERB AUSGELOBT
Braunschweig

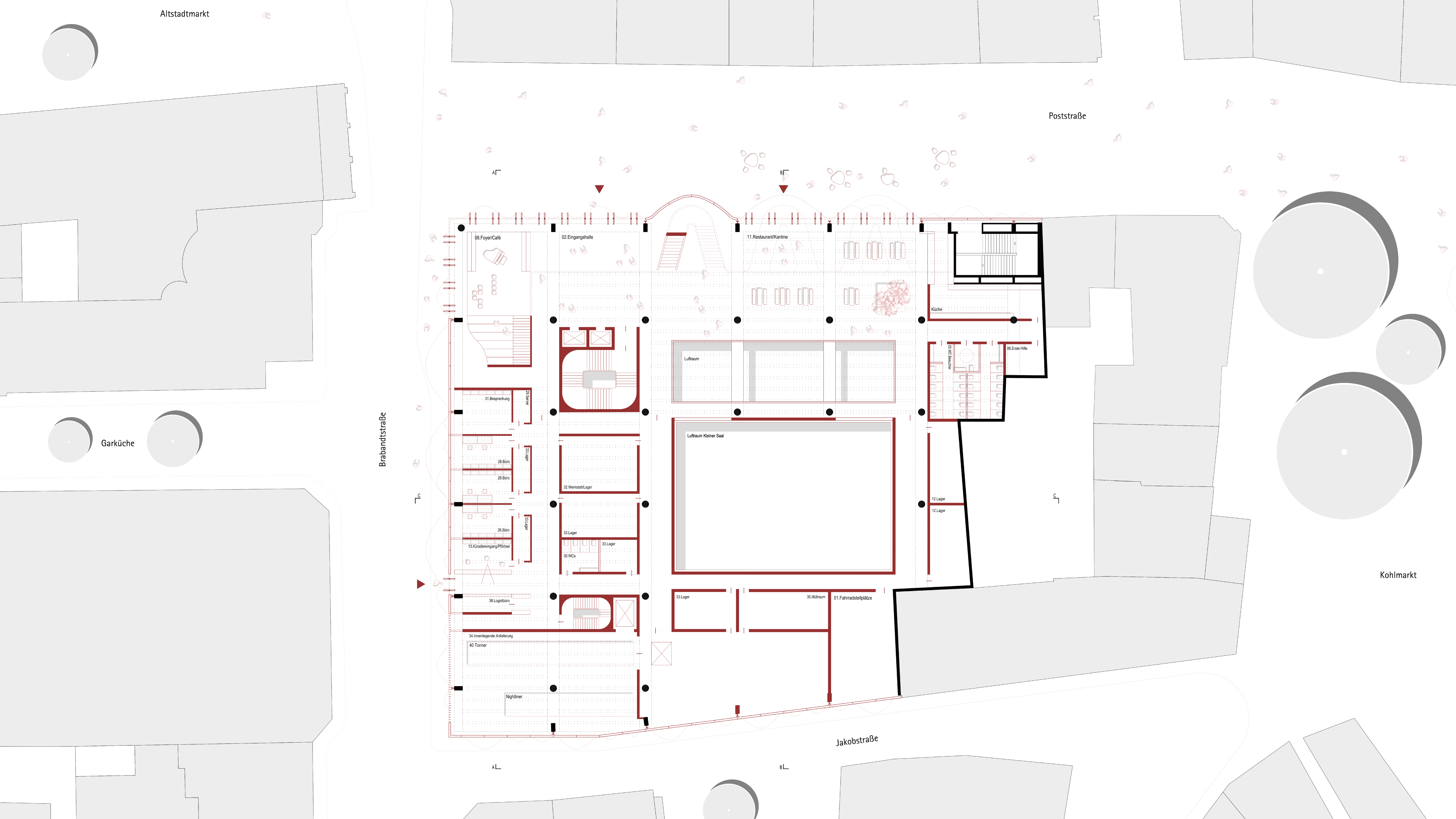
Das Unternehmen New Yorker hat mit Unterstützung der Stadt Braunschweig einen Architekturwettbewerb für ein Haus der Musik in der Innenstadt ausgelobt. Es handelt sich um einen sogenannten „Einladungswettbewerb“: Zehn Architekturbüros sind eingeladen, Entwürfe für ein Haus der Musik auf dem Gelände des ehemaligen Karstadt-Einrichtungshauses in der Poststraße anzufertigen. Darunter sind sowohl junge als auch alteingesessene, renommierte Büros. Sie kommen aus der Region oder sind überregional, zum Teil europaweit, aktiv.

Die Durchführung und Betreuung des Wettbewerbs liegt in den Händen des Braunschweiger Architekturbüros cmas. Die Koordination erfolgt durch ein Team von Friedrich Knapp, das sein Herzensprojekt mit genauso viel Engagement und Sorgfalt weiterführen wird.

„Mit dem Start des Wettbewerbs ist ein wichtiger Meilenstein zur Verwirklichung des Hauses der Musik in der Innenstadt erreicht“, hebt Oberbürgermeister Dr. Thorsten Kornblum hervor. „Es ist traurig, dass Friedrich Knapp, der durch seine Initiative einen innerstädtischen Standort für das Haus der Musik überhaupt erst ermöglichte, dies nicht mehr miterleben kann. Spannende Entwürfe sind zu erwarten. Das Haus der Musik zahlt neben der vom Rat beschlossenen Innenstadtstrategie auch auf das Investitionspaket ‚Bildungs- und Arbeitsort Braunschweiger Innenstadt‘ ein. Dessen Kern ist die verstärkte Ansiedlung frequenzbringender Bildungseinrichtungen, um die Innenstadt zusätzlich zu beleben. Durch die Kombination aus städtischer Musikschule und Konzerthaus wird das Haus der Musik eine starke Anziehungskraft entwickeln.“

Eingeladen wurden folgende Büros:

Graft Gesellschaft von Architekten mbH, Berlin
Ottinger Architekten BDA, Braunschweig
behet bodzio lin, Münster
Hadi Teherani Architects GmbH, Hamburg
adept, Hamburg
haas cook zemmrich studio 2050, Stuttgart
Peter Haimerl Architektur, München
Dorte Mandrup A/S, Kopenhagen
Gustav Düsing Architekt, Berlin
gmp & Giesler Architekten, Berlin/Braunschweig

Das Preisgericht soll im Mai 2025 eine Siegerin oder einen Sieger küren, im Anschluss werden die Entwürfe öffentlich ausgestellt. Vertreterinnen und Vertreter aus Rat und Hochbaudezernat werden dem Preisgericht angehören: aus dem Rat Burim Mehmeti, Lisa-Marie Jalyschko und Gerrit Stühmeier. Dirk Franke, Architekt und Leiter Fachbereichs Gebäudemanagement, vertritt das Hochbaudezernat. Für die fachliche Expertise ist die städtische Tochtergesellschaft Struktur-Förderung Braunschweig GmbH eingebunden. Zudem bringen Bernd Schmidbauer, Leiter des Fachbereichs Stadtplanung, und Kulturdezernentin Prof. Dr. Anja Hesse als Sachverständige die städtebaulichen Belange und kulturfachlichen Aspekte ein. Der Wettbewerb soll auch die bauliche Machbarkeit des Vorhabens eruieren: Zur Aufgabe gehört es, sowohl einen Umbau im Bestand als auch einen Neubau zu untersuchen.

Neben den künftigen Stiftshöfen anstelle der bisherigen Burgpassage, in der Schule, Hotellerie und Wohnen die neuen Nutzungsformen bilden werden, werden durch die Nachnutzung des Karstadt-Gebäudes am Gewandhaus als Haus der Musik weitere Handelsflächen reduziert. Damit wird dem Strukturwandel Rechnung getragen, mit dem sich nahezu alle Innenstädte konfrontiert sehen. Die Förderung der Besucherfrequenzen durch neue Einrichtungen, die die etablierten Angebote in der Innenstadt wie Handel und Gastronomie ergänzen und zusätzliche Frequenzen schaffen, sind angesichts des veränderten Einkaufs- und Besuchsverhaltens von großer Bedeutung für die Belebung der Innenstadt. Davon profitieren dann auch wieder Handel und Gastronomie.

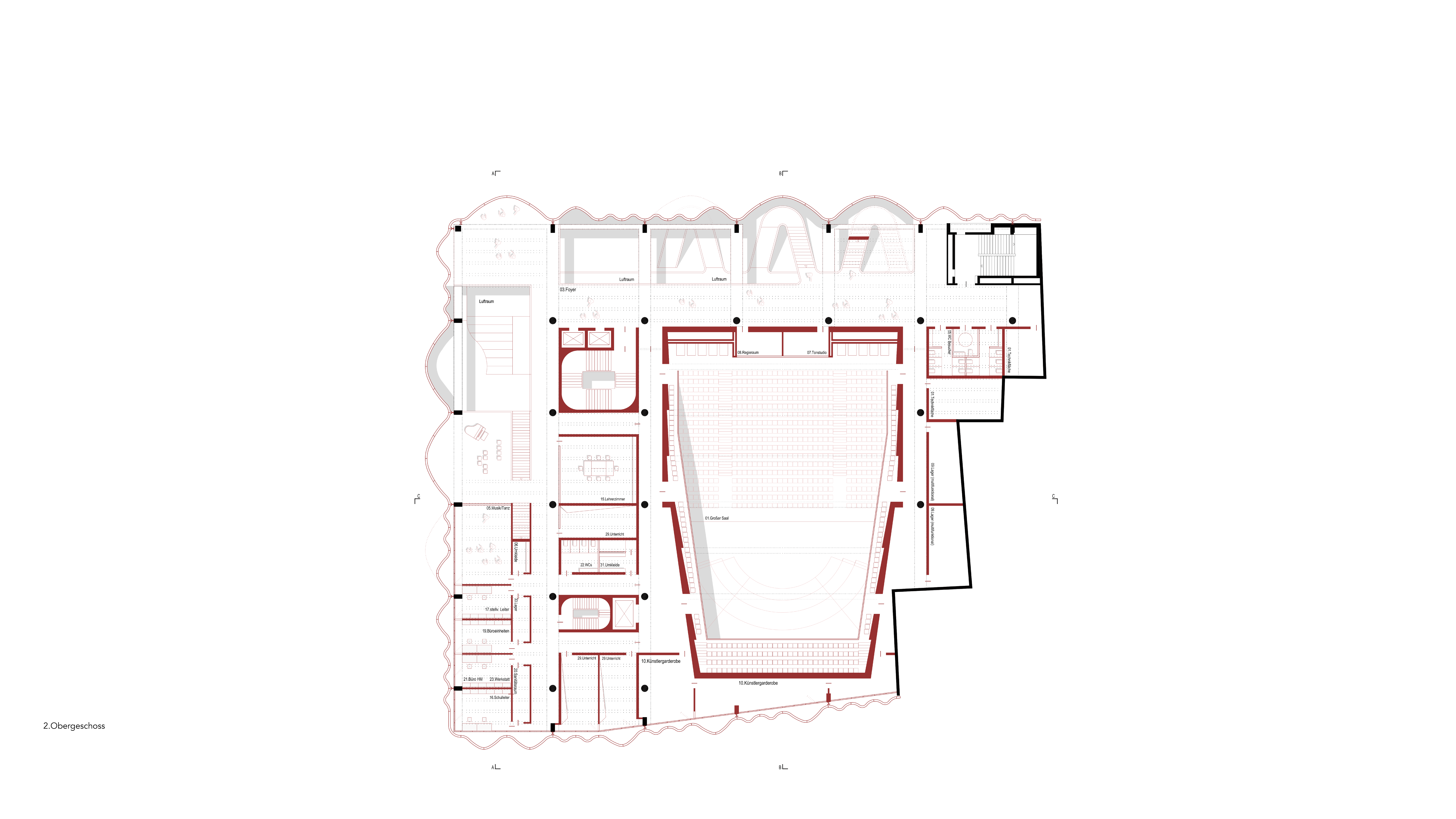
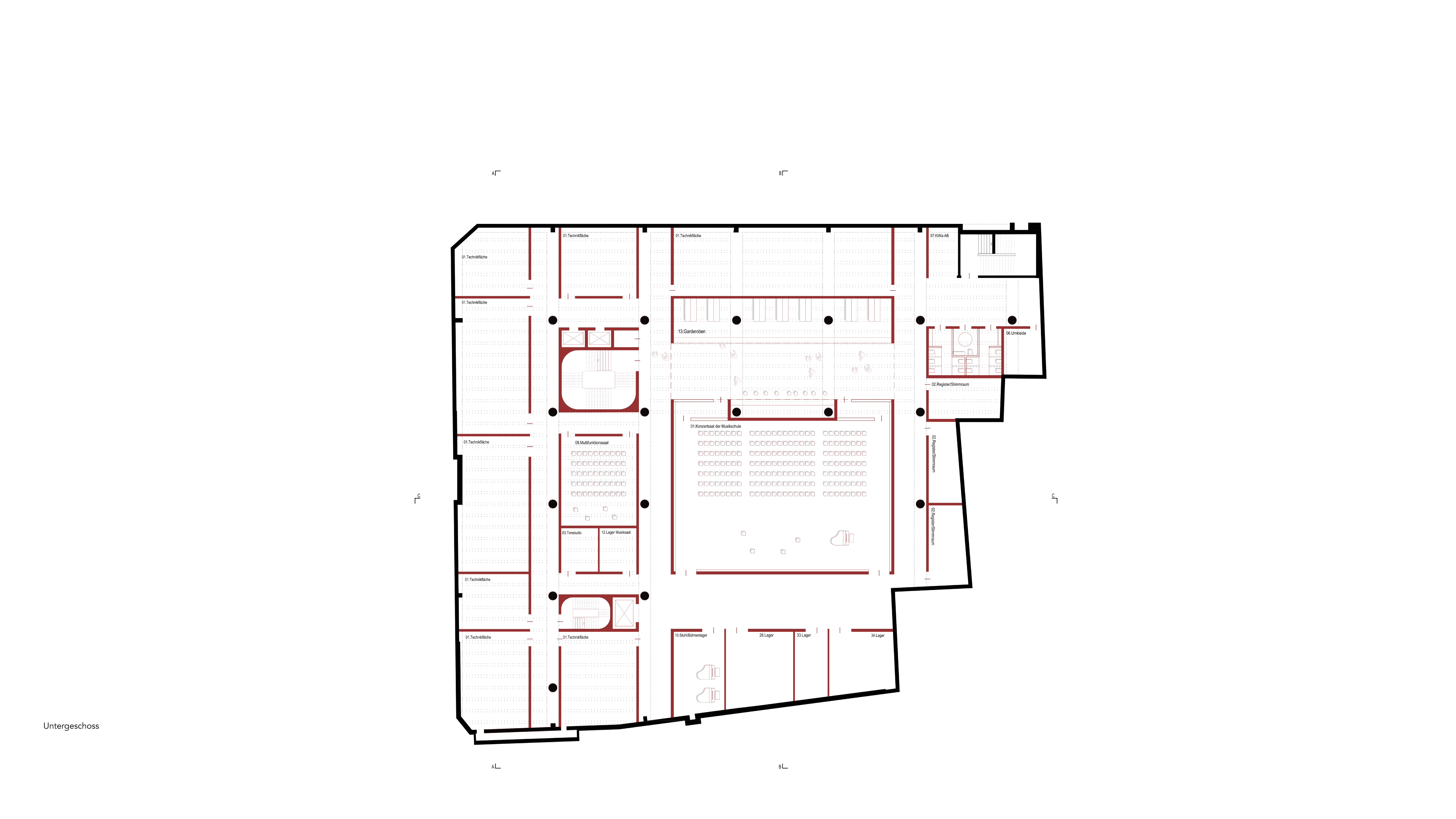
Die Grundsatzentscheidung, ein Haus der Musik in Braunschweig zu schaffen, hatte der Rat im März 2023 getroffen. An einem Standort sollen künftig die Städtische Musikschule, ein Konzertsaal und Räumlichkeiten für Kommunikation und Begegnung, einen sogenannten Dritten Ort, zusammengefasst werden. Zunächst war hierfür ein Standort im neuen Bahnhofsquartier nahe Viewegs Garten vorgesehen.

Mehr dazu